

제원표 메뉴얼대로 안전한 작업을 하시길 바랍니다.
크레인 전복사고의 대부분은 중량물 들다가 넘어가는 것이 아닙니다.
1톤짜리 인양하다가 전복 되기도 합니다.
몇 미터에 난 얼마나 보냈어
난 더 멀리 보냈어 하는 시대는 지나가고 있지요
4단 붐
2단 틸트 지브
X/H형 아웃트리거
최대 지상 양중
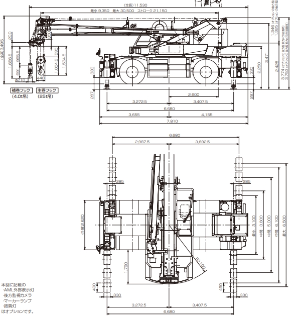
기본 붐 : 31.3m
보조 붐 : 44.2m
최대 작업높이는 44.2미터 입니다.
최대 작업반경은 27.9미터 입니다.
붐 기복 각도 : 0°~84°
25톤 크레인 장비를 작업할때 필요한 공간은 아웃트리거 기준 7미터*7미터 잡습니다.
아웃트리거
최대 장출 : 6.5m
최소 장출 : 3.1m(X형), 2.3m(H형)
작업시 최대 노면 하중 : 26.9t
밧데리 : 12V-120Ahx2회(24V)
연료 탱크 용량 : 300L
차량 길이 11.53미터 입니다.
차량 높이는 3.495미터 입니다. (3.5미터로 숙지)
전장 : 11,530mm
전폭 : 2,620mm
전고 : 3,495mm
최고 속도 : 49km/h
최소 회전 반경 : 5.1m(4륜구동), 8,5m(2륜구동)
중량
차량의 총 중량은 25.6톤 입니다.
차량 총 중량 : 25,595kg
앞 축 : 12,800kg
뒤 축 : 12,795kg
13톤 크레인과 25톤 크레인이 인양능력과 차량 무게가 비슷합니다.

앞,뒤 아웃트리거 간격이랑
턴테이블 45도 회전시 뒤 오무리 간격을 어느정도 알고 있으면 좁은 곳에서도 보다 쉽게 세팅이 가능합니다.

| 차량탑재형 이동식 크레인이란? 카고 크레인(Cargo Crane) (0) | 2022.12.29 |
|---|---|
| 알아두면 유용한 건설 및 중장비 관련 사이트들. (0) | 2022.12.21 |
| TADANO GR700N2 DEF/AdBlue(요소수) 및 경고등 관련. (0) | 2022.11.15 |
| 하이드로 크레인은 왜 하이드로 인가요??? (0) | 2022.09.19 |
| 크레인 수신호 방법 (0) | 2022.09.19 |
댓글 영역